Sbírka na Donio

Prosíme vás, podpořte nás v rámci sbírky Donio 

 https://donio.cz/rekonstrukce-synagogy-volyne-a-vytvoreni-kulturniho-centra

AKTUALITY

Prosíme vás, podpořte nás v rámci sbírky Donio 

 https://donio.cz/rekonstrukce-synagogy-volyne-a-vytvoreni-kulturniho-centra

Synagoga Volyně v Barokní sýpce - Benefiční koncert. Děkujeme všem účinkujícím za krásná vystoupení, paní ředitelce ZUŠ Volyně Kateřině za zorganizování benefiční koncertu, oběma manželům Srnkovým, paní Mgr. Václavě za vedení sboru a režii, Artic Bake House za raut, paní doktorce Káje za přípravu a koordinaci tomboly, rautu a dobročinného stánku spolu s výrobou všech mýdel - pod značkou Kaja’s Chaos https://www.cajaschaos.com. Výtěžek akce poslán na Donio https://donio.cz/rekonstrukce-synagogy-volyne-a-vytvoreni...

Naše milé přátele a podporovatele  zveme dnes 11. prosince v 17.00 hod. na akci pořádanou ve prospěch rekonstrukce synagogy , tentokrát do nově otevřené barokní Sýpky ve Volyni. 

Děkujeme návštěvníkům, kteří přispěli na rekonstrukci Synagogy Volyně, triu Nešama za hudbu a písně v jidiš a ladino, přednášejícím MUDr.Karolíně Hoňkové Radilové a ing. arch Maxi Hoffmeisterovi. 

Za pomoc při přípravě Martě, Tomášovi, za promítání Bertovi, a za uspořádaní celé akce včetně Dobročinného stánku tentokrát v pražské Peškovce naší Káje. Díky posíláme i do Artic Bake House.            (https://www.articbakehouse.cz/)

 

 

 

Přejeme všem dobrý a sladký nový rok.
 

Děkujeme panu Jaroslavu Achabovi Haidlerovi https://cs.wikipedia.org/wiki/Jaroslav_Achab_Haidler za famózní výkon v monologickém dialogu děsivě mrazivého, originálního a inteligentně zrežírovaného divadelního představení  "Pan Theodor Mundstock" autora Ladislava Fuchse. Pro Synagogu Volyně zorganizoval představení pan Karel Skalický https://muzeum-volyne.cz/kontakty/ v rámci Dnů architektonického dědictví. Velice děkujeme, i Verče a panu zvukaři, kteří udělali vše pro zdárný průběh benefiční akce.

Srdečně zveme na divadelní představení:

 PAN THEODOR MUNDSTOCK - Jaroslav Achab Haidler 

Synagoga Volyně - neděle 7. 9. 2025 v 18.00 hodin

Velice děkujeme Nadačnímu fondu města Volyně za uspořádání Charity Day a všem, kteří na akci 19. 7. přišli a přispěli. Výtěžek 110 00 Kč bude použit na výrobu přesných replik původních vitrážových oken do hlavního synagogálního sálu.

Volyně Charity Day 19. 7. 2025 + 20. 7. 2025 Čkyně Řemeslná pouť = velká pomoc pro rekonstrukci synagogy ve Volyni

“ Kdo zachrání jednu památku, zachrání ji pro celý svět…”

Děkujeme všem, kteří nás již podpořili v naší snaze při rekonstrukci Synagogy Volyně - ať již prostřednictvím platby na našem účtu č. 123-7002580207/0100, či na Donio. 

Přidejte se prosím i v sobotu 19. 7. 2025, kdy Nadační fond města Volyně chystá ve prospěch Synagogy Volyně Charity Day. https://nfmvolyne.cz/repliky-oken-synagogy-ve-volyni/

V neděli ve Čkyni následuje Řemeslná pouť vč. prodeje origiálních ručně vyráběných mýdel Kaja´s Chaos, kdy výtěžek z prodeje bude opět poukázán ve prospěch rekonstrukce volyňské synagogy.

Charity Day ve Volyni - v sobotu 19. 7. 2025 - Mimořádná charitativní akce je pořádána 1x ročně Nadačním fondem města Volyně. Letos na podporu výroby velkých synagogálních oken do hlavního sálu volyňské synagogy.

Přijďte nás podpořit- pro všechny, které zajímá kultura - proběhnou 2 podvečerní prohlídky interiéru synagogy (17.00 a 19.00).

Sportovně založení se mohou zúčastnit turnaje družstev v beach volejbalu.

Pro všechny pak koncert kapel Elán forever a Netopím se, prodej zajímavých předmětů v Dobročinném stánku, půlnoční ohňostroj.

Veškerý výtěžek akce pořádané na nádherném prvorepublikovém koupališti bude věnován neziskové organizaci Synagoze Volyně, z.ú. a bude použit na výrobu oken, která byla před 80 lety zazděna.

Děkujeme pěveckému sboru Rimon Židovské liberální unie (https://www.zlu.cz/) za benefiční vystoupení na podporu rekonstrukce synagogy ve Volyni. Po skvělém koncertě byli opět hosté pohoštěni košer vínem z Chrámců a občerstvením z Artic bakehouse (https://www.articbakehouse.cz/). Nechyběla Tombola, při které, již tradičně, vyhrály všechny lístky.

Všem hostům děkujeme za účast.

V neděli 22. června v 17.00 v Synagoze Volyně vystoupí pěvecký sbor Židovské liberální unie RIMON s benefičním vystoupením na obnovu synagogy s názvem Židovský rok v písních. Těšíme se na vaši účast.

Přijďte za námi - Volyně Food Festival v sobotu 31. 5. (https://www.facebook.com/foodfestivalvolyne/?locale=cs_CZ) Pod značkou Kaja’s Chaos vznikají originální výrobky : ručně vyráběná mýdla rozličných tvarů, barev, vůní, neotřelé kombinace : švestky s mákem, maliny s kokosem, káva s vanilkou, sušené květiny aj, i s plátky stříbra a 23 karátového zlata. Dále ručně malované portréty na taškách. Pro děti pak stylově k food festivalu roztomilé náhrdelníky s miniaturami dortíků a nádobíčka.

Jde o stánek CHARITATIVNÍ = 100% výtěžku bude posláno na  rekonstrukci Synagogy Volyně na účtu Donio.cz (https://donio.cz/.../e7146a5f-f3ea-442a-acfc-97543af583d3)

Děkujeme Victoria Ensemble za překrásný benefiční koncert v Synagoze Volyně, během kterého paní doktorka Karolína překvapila našeho vzácného hosta, paní Helene Ritchie z Nového Zélandu, narozeninovým darem -  lodním kufrem, který úplnou náhodou koupila a který patřil jejímu pradědečkovi D. Fantlovi, význačnému volyňskému obchodníkovi, mecenáši a představenému židovské obce ve Volyni.Po koncertě byli opět hosté pohoštěni košer vínem z Chrámců a občerstvením z Artic Bakehouse (https://www.articbakehouse.cz/).Nechyběla Tombola, při které, již tradičně, vyhrály všechny lístky. Díky!

Skvělý koncert Zemlinského kvarteta v předvečer 80. výročí konce 2. světové války v Synagoze Volyně. 

Děkujeme Zemlinskému kvartetu za mimořádný hudební zážitek v Synagoze Volyně.
Děkujeme naší paní doktorce Káje za uspořádání kulturní akce u příležitosti 80. výročí konce 2. světové války.
Děkujeme sponzorům při tomto setkání za podporu ; Nadační fond obětem holokaustu, Artic bakehouse, Kaja’s Chaos. Děkujeme všem, kteří pomohli při přípravě a věříme, že slavnostní akce potěšila naše hosty.

Srdečně zveme všechny příznivce obnovy kulturní památky na SLAVNOSTNÍ KONCERT renomovaného ZEMLINSKÉHO KVARTETA, tvořeného výjimečnými hudebníky. V předvečer 80. výročí konce 2. světové války - SYNAGOGA VOLYNĚ - 7. 5. 2025 v 19.30 hodin 

Program:  Alexander Zemlinsky: Píseň  • Dmitrij Šostakovič: 8. kvartet, věnovaný památce obětí fašismu a 2. světové války • Antonín Dvořák: Smyčcový kvartet č.12 F dur “ Americký” 

Vstupné 250 Kč / do 18 let 100 Kč.     Po koncertě Vás zveme na občerstvení.

Děkujeme všem, kteří včera přišli do Synagogy Volyně a uctili památku nevinně zavražděných lidí v době holokaustu, kteří před více než 80 lety seděli na stejných místech jako vy…

Jan Burian v Synagoze Volyně:
Děkujeme za příjemný večer  účinkujícímu i milým hostům : Le Chaim!!!

27. 3. (ve čtvrtek) v 18.30 - JAN BURIAN v Synagoze Volyně - JSTE ZVÁNI ! 

Kulturní program roku 2025 pokračuje, sledujte nás na FB - Synagoga Volyně!

Děkujeme báječné klezmer kapele Pastrami. V synagoze skvěle pobavila návštěvníky Purim karnevalu minulý týden v pátek 14. 3. Děkujeme všem přátelům, příznivcům, sledujícím, účinkujícím a organizátorce doktorce Karolíně, díky níž je vždy vše připravené, s občerstvením, přednáškou k tématu a skvělou náladou.

Srdečně zveme všechny příznivce rekonstrukce kulturní památky Synagogy ve Volyni na oslavu nejveselejšího svátku PURIM, 14. 3. od 18 hod.( letos připadá na 13.-14. 3.).
Tento svátek se slaví od 5. století před naším letopočtem na památku záchrany Židů královnou Ester.
Perský vezír Haman tehdy chtěl kvůli své nenávisti vyhladit všechny Židy v říši. Netušil, že královna Ester, žena perského krále Achašveroše, je také Židovka. Ta riskovala svůj život intervencí u krále a Židy zachránila. Ti, co usilovali o její život, byli pobiti.
Svátek nese jméno po slově pur~ hebrejsky los. Losem totiž bylo určeno datum obrany.
Mezi židovské zvyky o tomto svátku patří čtení z knihy Ester, vzájemné obdarování, charita, karneval a veselá hostina.
Přijďte se s námi pobavit. K veselé náladě přispěje klezmer hudbou kapela Pastrami. Těšíme se na Vás.

Pozvánka na Kafkův Proces - 28. 2. 2025 / vzpomínka na 27. 1. - v Synagoze Volyně proběhla pieta ke Dni obětem holokaustu. 

Minulý týden, 27. 1. , jsme vzpomínkovou pietní akcí ke Dni obětem holokaustu zahájili kulturní program v Synagoze Volyně v roce 2025. 

Zúčastnili jsme se  uctění památky holokaustu na Pražském hradě

V únoru pokračujeme s kulturním programem - a co nejsrdečněji zveme všechny přátele obnovy kulturní památky Synagoga Volyně na kulturní událost dne 28. 2. 2025 ve 20.00 hod. - Kafkův PROCES v podání SCHIMMERLE KLEZMER KABARET. 

Děkujeme účinkujícím slavnostního setkání ke dni Mezinárodního dne obětí holokaustu panu dr. Fedorovi Gálovi, který s působivým hudebním  doprovodem skupiny Drť sdílel  svůj životní příběh a paní dr. Karolíně Hoňkové Radilové, ředitelky neziskové organizace Synagoga Volyně, z.ú., za přednášku o holokaustu a četbu úryvků z knihy jejího otce Prof. Tomáše Radila, Ve čtrnácti sám v Osvětimi, který přežil mj.selekci před Mengelem a byl na den přesně, před 80 lety, 27. 1. 1945 u brány Arbeit Macht Frei v Auschwitz a viděl na vlastní oči odcházet posledního německého vojáka a o několik hodin později byl přítomen osvobození Rudou armádou.

Oběma děkujeme za vystoupení a hostům za návštěvu.

Děkujeme všem přátelům, kteří podpořili náš projekt Rekonstrukce Synagogy Volyně na portále Donio či na našem účtu : 123-7002580207/0100 v roce 2024!

Přejeme Vám hodně štěstí a zdraví v roce 2025.

Těšíme se na Vás  na všech kulturních akcích, o kterých Vás budeme informovat. 

Team neziskové organizace Synagoga Volyně, z.ú.

Velice děkujeme paní ředitelce ZUŠ Volyně za uspořádání komorního klasického koncertu s krásným hudebním programem a výkladem, kde zahrála na housle spolu se svým manželem kytaristou.
Kateřino a Pavle děkujeme!

Všem přejeme šťastné a klidné svátky.

BYLA INTEPRETOVÁNA DĹA:

John Dowland – Galliard / Henry Purcell – Bourrée, Hornpipe / J.S. Bach – Air / Francesko Molino – Nocturno (Andante, Allegro-Rondo) / J.S.Bach, Charles Gounod – Ave Maria / A. Vivaldi – II. věta z koncertu D dur pro kytaru a orchestr / Mauro Giuliani – Menuet / Francesco Amoroso – Sernata Napolitana / Leo Delibes – Valčík z baletu Coppélia / Tichá noc

účinkovali: Kateřina Srnková – housle / Pavel Srnka – kytara

Benefiční koncert ve Čkyni 30. 11. 2024. V předsálí synagogy ve Čkyni byl dobročinný stánek s ručně  vyrobenými  předměty autorky pod značkou Kaja’s Chaos / design yourself. Kdykoliv si koupíte ručně malovanou originální tašku ( = obraz na plátně) nebo skvělé voňavé mýdlo, přispějete 100 % na opravu volyňské synagogy. Děkujeme

Velice děkujeme Haně Dědové a teamu ze synagogy ve Čkyni za uspořádání krásného koncertu pod vedením Přemka Filouse. Výtěžek ze vstupného jsme zaslali na náš účet u Donia a bude použit na rekonstrukci Synagogy Volyně.

Srdečně zveme všechny příznivce obnovy kulturní památky na benefiční  hudební podvečer ve čtvrtek 12. prosince 2024 v 17.30 hodin v Synagoze ve Volyni

P R O G R A M:

John Dowland  –  Galliard  / Henry Purcell – Bourrée, Hornpipe / J.S. Bach – Air/ Francesko Molino – Nocturno (Andante, Allegro-Rondo) / J.S.Bach, Charles Gounod  – Ave Maria / A. Vivaldi – II. věta z koncertu D dur pro kytaru a orchestr / Mauro Giuliani – Menuet / Francesco Amoroso – Sernata Napolitana / Leo Delibes – Valčík z baletu Coppélia / Tichá noc

účinkují: Kateřina Srnková – housle / Pavel Srnka – kytara

                                                                                 Přejeme Vám krásné prožití svátků

Pozvánka na benefiční koncert do synagogy ve Čkyni 30. 11. 2024 v 18.00 pro podporu rekonstrukce synagogy ve Volyni. 

Vážení a milí podporovatelé rekonstrukce synagogy ve Volyni, zveme Vás na koncert, 30. 11. 2024 v 18 hod., v synagoze ve Čkyni, který pro nás uspořádali naši přátelé z této synagogy.


Děkujeme a těšíme se na Vás.

Benefiční koncert s názvem Klenoty barokní židovské hudby (hudební umělecké seskupení Creatrio) proběhl v pátek 1. 11. 2024 a přinesl divákům, kteří se sešli v hojném počtu, úžasný umělecký zážitek. Velice děkujeme uměleckému seskupení hudebníků skupiny Creatrio https://www.creatrio.cz/.Po koncertě následoval prodej Dobročinného stánku s košer vínem z Chrámců, ručně vyráběných mýdel a uměleckých tašek s originálními malbami. Výtěžek z akce byl zaslán na naši sbírku na rekonstrukci synagogy na Donio.cz.  Děkujeme hudebníkům a všem, kteří participovali na akci v synagoze."Kdo zachrání jednu památku, zachrání ji pro celý svět…”

Dobročinný stánek na společenské akci na Moravě. Prodej malovaných obrazů na taškách a ručně vyráběných mýdel rozličných vůní a tvarů.
100 % výtěžku odesláno na Donio, sbírku pro Rekonstrukci synagogy Volyně. 

Děkujeme všem přispěvatelům a zveme je v pátek 1.11. v 18.30 na koncert Klenoty barokní židovské hudby- Creatrio v synagoze Volyně.

 

ROZHOVOR | S MUDr. Karolínou Hoňkovou Radilovou, MBA, o záchraně a obnově synagogy ve Volyni.

Webový portál Pro památky uvádí rozhovor se zakladatelkou z.ú. Synagoga Volyně na téma podrobností obnovy, využití místa pro kulturní účel a dalších aktivit. Celý rozhovor si, prosím, přečtěte zde:

https://www.propamatky.info/cs/zpravodajstvi/x/x/x/7402

Děkujeme za váš zájem.

 

Vážení přátelé,

srdečně Vás zveme na koncert v synagoze ve Volyni:

1. 11. 2024 18.30 Creatrio : Klenoty barokní židovské hudby.

Těšíme se na vaši účast. Děkuji, že nás podporujete.

MUDr. Karolína Hoňková Radilová, MBA

8. 9. 2024 Poslechněte si pořad Šalom alejchem Českého rozhlasu s názvem "Praha má ulici Nicolase Wintona, jak uzdravit blízkovýchodní trauma a zachraňte synagogu ve Volyni".  Se zakladatelkou neziskové organizace Synagoga Volyně, z.ú. MUDr. Karolínou Hoňkovou Radilovou tentokrát hovořila redaktorka Českého rozhlasu Daniela Brůhová. Děkujeme za podporu našeho projektu.

https://www.mujrozhlas.cz/salom-alejchem/praha-ma-ulici-nicolase-wintona-jak-uzdravit-blizkovychodni-trauma-zachrante

Dne 11. srpna 2024 proběhl v Synagoze Volyně benefiční koncert PASTRAMI MUSIC

Velice děkujeme všem, kteří participovali na Dni židovských památek 11. 8. 2024, především paní Mgr. Jindře Černé za organizaci, sestavení programu, prohlídky pro návštěvníky, finanční dar, uspořádání benefičního koncertu skupiny Pastrami music, jejímž protagonistům rovněž děkujeme za vystoupení. Všem, kteří přispěli patří dík. Vážíme si Vaší podpory na rekonstrukci budovy synagogy a těšíme se na Vaši další návštěvu. Synagoga Volyně, z.ú.

PASTRAMI MUSIC v SYNAGOGA VOLYNĚ 11. srpna 2024 na YouTube

https://www.youtube.com/watch?v=MRFDswi0EWk


Dnes - v neděli 11. 8. 2024 - jste srdečně zváni  na benefiční koncert na opravu volyňské synagogy v 15.00 přímo v hlavním sále synagogy!

K dnešnímu Dni židovských památek se také v synagoze konají v čase 13:00-17:00, každou celou hodinu, komentované prohlídky. 

Děkujeme, že nám pomáháte a těšíme se na vaši účast!

Synagoga Volyně, z.ú.

Ceníme si toho, že volyňská synagoga byla zahrnuta do projektu Dne otevření židovských památek.

https://sites.google.com/site/denzidovskychpamatek/seznam-pam%C3%A1tek?fbclid=IwY2xjawElc-hleHRuA2FlbQIxMQABHTcTbJjHKqfRaT25-PCczXZA-WylA6KbWuBnXZofS-QksQITIaVLBVGZag_aem_AVZ48hJY1epLf2-j_x02-g

 

Letošní Deni židovských památek  připadne na 11. srpna 2024. V rámci informací o památkách v regionu je vydán následující text. Jste rovněž srdečně zváni na prohlídku synagogy. 

Synagoga ve Volyni, postavená jako jedna z mála v empírovém stylu v letech 1838-1840, restaurována v roce 1890, je jednou z významných historických památek města Volyně. Tato stavba nahradila původní synagogu neznámého stáří a podoby, která stála uprostřed západní strany dnešní Žižkovy ulice. Empírová synagoga byla postavena na místě nového ghetta a sloužila místní židovské komunitě až do druhésvětové války.
Po skončení druhé světové války, kdy se již v synagoze nekonaly bohoslužby, byla budova v roce 1956 adaptována na kino. V dalších letech se stala diskotékou. Empírová synagoga je výrazným příkladem architektury tohoto stylu v regionu. Budova má symetrické empírové průčelí se středním tříosým rizalitem a dvěma souměrnými postranními částmi. Nad vstupem do synagogy je umístěn štít s hebrejským nápisem a dvěma lvy držícími korunovaný štít s hodinami. Hebrejský nápis nad vstupem zní: Zde je Dům modlitby - Bohu živoucímu -Šeptej - s modlitbou si vyléváme svá přání - Bylo dokončeno v roce 1840. Nechť ji upevní nejvyšší - Amen .
Synagogální sál, který vyplňoval severní část budovy, byl po válce necitlivě přestavěn, byla zazděna všechna velká synagogální okna, vestavěn balkon a zmenšena ženská galerie.
Jižní část budovy obsahovala školu a byt duchovních. V části bývalého rabinátu sídlí ZUŠ.
Synagoga ve Volyni je nejen důležitým historickým a architektonickým monumentem, ale také významným
kulturním a společenským prostorem. Plánovaná rekonstrukce budovy má za cíl vrátit budovu do původního stavu, vytvořit multifunkční prostor pro kulturní a společenské akce, koncerty, přednášky. Součástí tohoto projektu bude  i výstavní prostor věnovaný historii synagogy a židovské komunity ve Volyni , stálá expozice antisemitismu a holokaustu.

Podpořte projekt rekonstrukce Synagogy Volyně. Jakákoli finanční částka poukázána na účet neziskové organizace Synagoga Volyně, z.ú urychlí uvedení budovy do původního stavu a vytvoření multikulturního a edukačního
centra. Dobročinná sbírka na Donio, či v KB, č.účtu: 123-7002580207/0100

MUDr. Karolína Hoňková Radilová, MBA, ředitelka Synagoga Volyně, z.ú.
MUDr. Karolína Hoňková Radilová, MBA, ředitelka Synagoga Volyně, z.ú.

5. 7. 2024 Poslechněte si reportáž Českého rozhlasu České Budějovice o záchraně Volyňské synagogy a vybudování kulturního centra.  Se zakladatelkou neziskové organizace Synagoga Volyně, z.ú. MUDr. Karolínou Hoňkovou Radilovou hovořila redaktorka Českého rozhlasu Kristýna Barchini. Děkujeme za podporu našeho projektu.

Play MP3

Děkujeme panu Ondřeji Fibichovi, českému básníkovi, autorovi písňových textů a publicistovi (https://cs.wikipedia.org/wiki/Ond%C5%99ej_Fibich) za podporu a osobní věnování ve své knize Moudrý rabi z Rabí: židovské pověsti Jihozápadních Čech. Citujeme: "Vzkřísit volyňskou synagogu je požehnaný nápad. Přátelsky věnuje Ondřej Fibich, 30.5.2024."



K úspěšnému projektu přispěje i mimořádná maturitní práce Alberta Hoňka, studenta Lauderovy školy v Praze. Fotogrammetrie Synagogy Volyně získala ocenění v letošním školním roce. Děkujeme a gratulujeme!
K úspěšnému projektu přispěje i mimořádná maturitní práce Alberta Hoňka, studenta Lauderovy školy v Praze. Fotogrammetrie Synagogy Volyně získala ocenění v letošním školním roce. Děkujeme a gratulujeme!

 

Představení projektu Rekonstrukce synagogy Volyně na Food festivalu ve Volyni, spojené s netradičními, ručně vyráběnými mýdly s vůní ovoce. Veškerý výdělek z prodeje byl zaslán na účet sbírky ; Rekonstrukce synagogy na Donio 

 


 

Představení projektu Rekonstrukce volyňské synagogy a vytvoření kulturního centra na přednášce pro  Rotary club Praha City, prezidentka Olga Rühle 30.4.2024


Pan Doc. Ing. Fedor Gál, DrSc. podpořil projekt rekonstrukce synagogy ve Volyni, vybudování kulturního centra a stálé expozice týkající se holokaustu

"Vaše úsilí, Karolíno,  má hluboký smysl. Přeji, ať se dobrá věc povede! Dle mého to má sílu!"      Fedor Gál

Fedor Gál > Blog Drť – Pochod smrti

https://www.fedorgal.cz/blog/index.php?itemid=1171


V květnu 2024 proběhla vzpomínková  akce  k  uctění  památky obětí holokaustu obyvatel Volyně ke dni Jom Ha Šoa.

Navštívila nás dr. Helen Ritchie, nejdéle působící místostarosta Wellingtonu, Nový Zéland, jejíž dědeček, p. Fantl patřil mezi význačné filantropy Volyně a jejíž rodina byla holokaustem poznamenána.

Osudy rodiny Rubínů představil pan Pavel Rubín, bývalý předseda Židovské obce v Karlových Varech.

Za realizační tým zakladatelka neziskové organizace Synagoga Volyně, z.ú.        

Dr. Karolína Hoňková Radilová

Děkujeme všem, kteří se zúčastnili vzpomínkové akce na nevinně zavražděné židovské obyvatele Volyně v období holokaustu.
Vážíme si vystoupení účinkujících: paní Helene Ritchie, panu Pavlu Rubínovi, Dr. Karolíně Hoňkové Radilové. 
Modlitbu za mrtvé přednesl předseda židovské obce v Plzni pan Jiří Löwy.

Paní ředitelce volyňské ZUŠ Kateřině Srnkové a Pavlu Srnkovi děkujeme za hudební doprovod.



Embedded PDF


Představení projektu rektonstrukce synagogy Volyně 

 

Během komponovaného večera se seznámíte s historií synagogy, představení plánu rekonstrukce a budoucnosti kulturního centra. Vystoupí zakladatelka neziskové organizace Synagoga Volyně, z.ú. MUDr. Karolína Hoňková Radilová,MBA Ing. arch. Max Hoffmeister a Ing. arch. Zdeňka Steinerová. V hudebním programu uslyšíte žáky ZUŠ Volyně. Akce se bude konat 29.2. 2024 od 17 hodin v sále Synagogy (Žižkova 250). Za realizační tým Vás srdečně zve a za podporu Vám děkuje, ředitelka a zakladatelka neziskové organizace Synagoga Volyně, z.ú. MUDr. Karolína Hoňková Radilová, MBA 



14.9.2023 proběhl na půdě synagogy průzkum a objevení genizy pod vedením PhDr. Lenky Uličné,Ph.D a týmu spolupracovníků z Židovského muzea v Praze.

Bylo nalezeno několik předmětů.

Na půdě synagogy ve Volyni se nachází zbytky genizy, která zde zřejmě fungovala od 40. let 19. století. Genizový nález byl po zběžné inspekci lokalizován na dvou místech, obě místa jsou poměrně vzdálená od vstupu na půdu. Vzdálenější nález obsahoval běžné fragmenty tištěných modlitebních knih převážně pražské produkce (sidury, machzory, tanach, talmud), 1 nalezený fragment byl rukopisný (inkoust na papíře, 2. pol. 19. stol.) obsahoval pořadí modliteb na vysoké svátky. Zajímavý byl nález hebrejsko-německého kalendáře z roku 1902 s rukopisnou poznámkou. V suti byly též 3 dřevěné polychromované fragmenty z interiéru synagogy, fragment schránky na modlitební řemínky (bajit – tfilin) a střepy zřejmě z poháru na kiduš. Poblíž ležel také ženský střevíc.

Ca 3 metry dál se našlo několik částí dětského oděvu (2 čepce, košilka, kabátek) spolu s dalším textilem (povlak na polštář, utěrky, ponožky aj. – ty však jsou mladší a pravděpodobně nebyly součástí genizy, podobě jako papírové nálezy plakátů apod. z doby, kdy prosto sloužil jako kino). Pod podlahou blíže u zdi na nepřístupném místě bylo také vidět zřejmě korbičku z dětského kočárku. Nálezy dětských oděvů a střevíce typologicky odpovídají nálezům z dalších českých geniz.


4.8.2023 návštěva synagogy pani Dr.Helene Ritchie, nejdéle působící místostarostky ve Wellingtonu, Nový Zéland, jejíž rodina ( Bob Fantl), patřila mezi významné obchodníky města.

Setkání zprostředkoval starosta města pan Ing. Martin Červený, dále se ho zúčastnil bývalý starosta Ing. Václav Valhoda, ředitel Městského muzea Karel Skalický, historik Mgr.Jiří Sankot a  MUDr.Karolína Hoňková Radilová .


Zahájili jsme spolupráci na výsledném projektu rekonstrukce objektu synagogy s architekty Ing. arch. Maxem Hoffmeisterem a Ing. arch. Zdenkou Steinerovou z významného architektonického studia SHARCHITECTS.


Oslovili jsme zkušeného architekta pana Ing. Richarda Sideje z atelieru Znamení čtyř               architekti s.r.o.

Nyní máme zpracované podklady pro architektonickou studii, nákresy původní fasády včetně zakreslených původních oken, vytvoření nových návrhů půdorysů a návrhy řešení realizace expozice

Připravujeme návrh realizace rekonstrukce volyňské synagogy, památkově chráněné budovy, jedné z mála navržených v empírovém stylu, uvedení budovy do původního stavu, opravy střechy, fasády s ojedinělým vyobrazením dvou lvů s hodinami a hebrejským nápisem, obnovení předsálí s s unikátní sloupovou výzdobou včetně řešení rekanalizace 5 zazděných oken synagogy tak, aby po 70 letech došlo metaforicky i doslovně k vpuštění světla do synagogálních prostor a mohla být přetvořena v důstojný multikulturní objekt, s vytvořením expozice, hudebního, galerijniho, výstavního a přednáškového sálu sloužícího pro širokou veřejnost .....

Společně s celkovou rekonstrukcí je rovněž nezbytné obnovit architektonické řešení jednotlivých prostor v přízemí i v prvním patře s přeměnou na sály expozice.

Sháníme finanční podporu a kulturní granty pro financování rekonstrukce budovy Synagogy ve Volyni a uvedení do původního stavu.

návrh průčelí synagogy - arch. ateliér Znamení čtyř
návrh průčelí synagogy - arch. ateliér Znamení čtyř
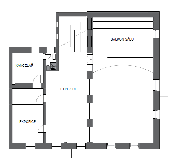
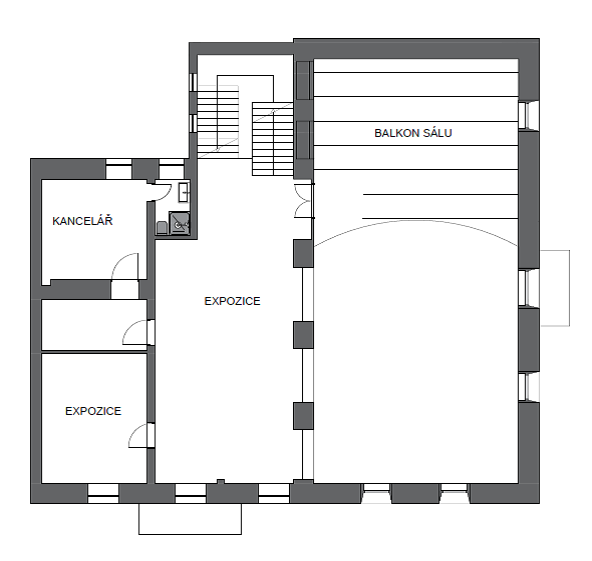
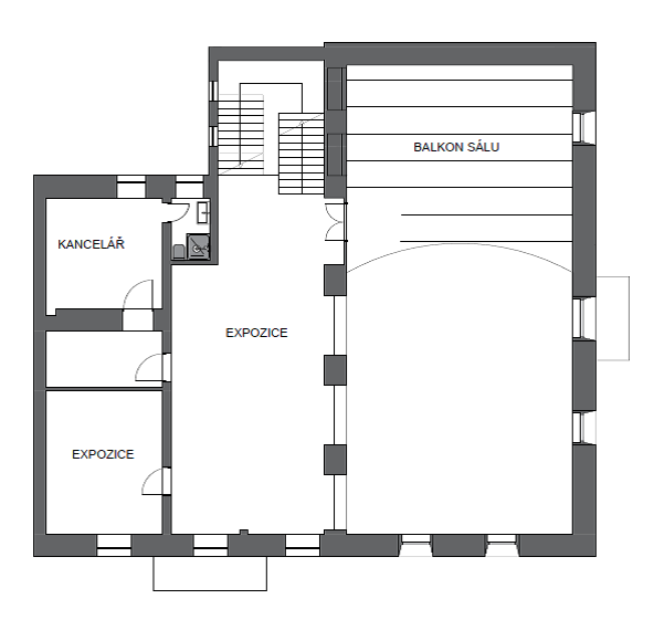
návrh 1NP synagogy - arch. ateliér Znamení čtyř
návrh 1NP synagogy - arch. ateliér Znamení čtyř
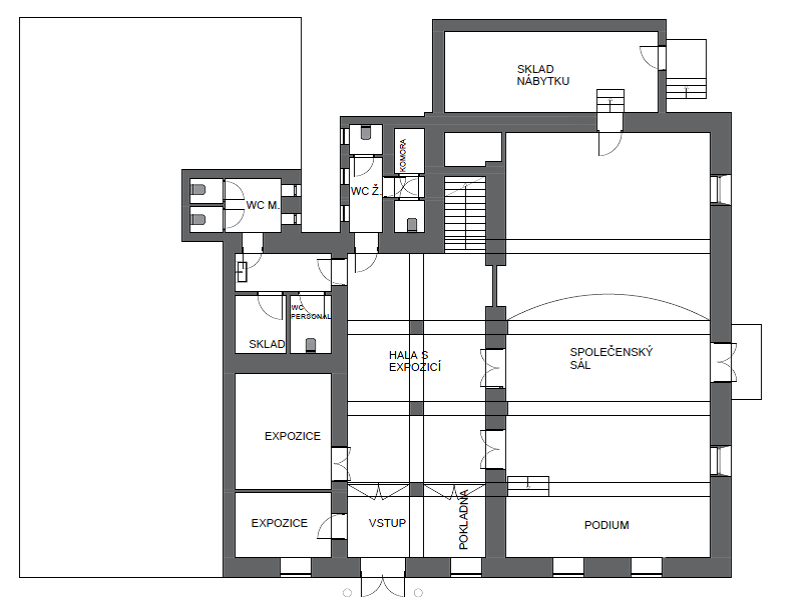
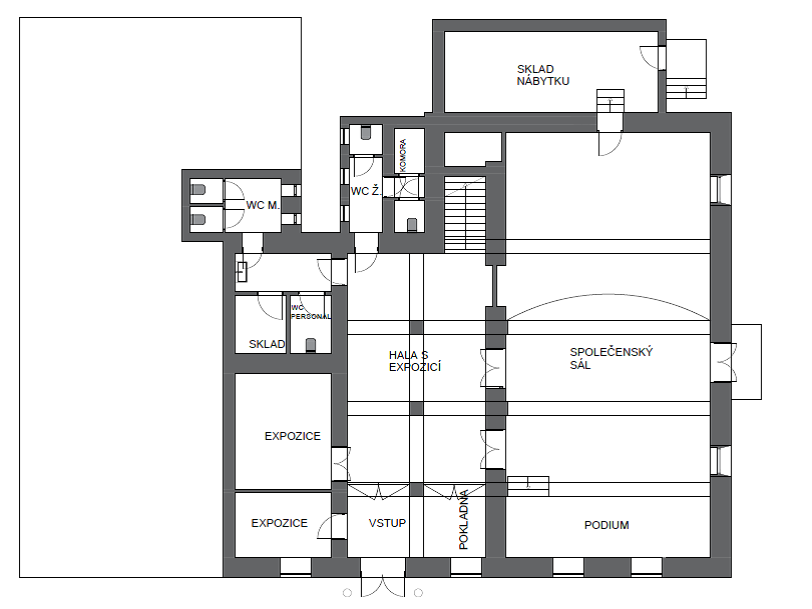
návrh 2NP synagogy - arch. ateliér Znamení čtyř
návrh 2NP synagogy - arch. ateliér Znamení čtyř

O konzultaci k projektu plánované opravy jsme rovněž požádali pana architekta Ing. Jana Soukupa, který se mj. také zabývá rekonstrukcemi synagog.

Židovské osídlení bylo ve Volyni od konce 15. století. Soustředěno bylo východně od historického jádra, převážně dnes v Žižkově ulici. Tato lokalita byla přístupná v bránou domu z dnešní Palackého ulice. V letech 1838 až 1840 byla postavena nová synagoga na místě starší, zdá se, že podle projektu vídeňského architekta Lorenze Wagnera. Bohoslužebným účelům sloužila do roku 1938 a v roce 1956 byla adaptována na kino. V 90. letech byla zde zřízena diskotéka. Po jejím uzavření zůstal objekt bez využití.

S novým majitelem se otevírá nová možnost, překonávající dosavadní využití. Základem je multifunkční využití s presentací původních hodnot, tedy duchovního prostoru, věnovanému reflexi účelu, pro který stavby byla vybudována a vzpomínky na obyvatele, pro které se stala středem jejich života, a kteří byli vinou německé nacionální agresivity za 2. světové války zničeni.

Vlastní sál synagogy bude prostorem pro pořádání kulturních akcí, koncertů, přednášek a divadelních představení. Důležité prostory v přízemí a v patře pak budou sloužit jako expoziční prostor pro seznámení s historií židovské komunity ve Volyni a v okolí. 

Věříme, že dojde ke zhodnocení významné památky Volyně s regionálním významem a přesahem presentované historie.

Ing. arch. Jan Soukup, projektant


Aktuálně pátráme po staviteli synagogy, neboť se nedochovaly původní plány. Všimli jsme si, že v Ivančicích zadal  rabín  Beer Oppenheim návrh synagogy   v roce 1850 víděňskému architektovi. Lorenz  Wagner ji navrhl v pozdně empírovém stylu. Tato budova nese shodné znaky s volyňskou synagogou. 

Dále pátráme po jakýchkoliv artefaktech týkajících se volyňské synagogy... staré fotografie, obrázky, knihy, eventuálně předměty ze synagogy.


kasička na milodary
kasička na milodary